桜井市西之宮 6号棟 /新築一戸建

3,380万円

奈良県桜井市大字西之宮

近鉄大阪線「大福」駅徒歩10分

桜井線「香久山」駅徒歩9分

近鉄大阪線「耳成」駅徒歩11分

価格
3,380万円
間取り/建物面積
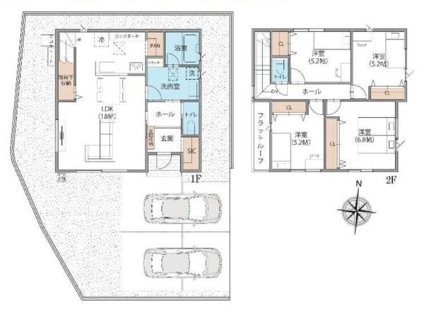
4LDK/102.68㎡
所在地
奈良県桜井市大字西之宮
築年
2025年9月(新築)
駐車
有(2台)
交通

近鉄大阪線大福」駅 徒歩10分

桜井線香久山」駅 徒歩9分

近鉄大阪線耳成」駅 徒歩11分

桜井市西之宮 6号棟 /新築一戸建の基本情報

物件名
桜井市西之宮 6号棟 /新築一戸建
価格
3,380万円
建物面積
102.68㎡
土地面積
45.06坪(148.98㎡)
築年月
2025年9月(新築)
総戸数
-
所在地
奈良県桜井市大字西之宮
交通

近鉄大阪線大福」駅 徒歩10分

桜井線香久山」駅 徒歩9分

近鉄大阪線耳成」駅 徒歩11分

桜井市西之宮 6号棟 /新築一戸建の詳細情報

設備条件
  • 閑静な住宅地
  • 駐車2台可
設備(その他)
    -
駐車場/月額
有(2台)/-
土地権利
所有権
国土法届出
不要
用途地域
第一種中高層住居専用
取引態様
一般媒介
引渡し
即時

桜井市西之宮 6号棟 /新築一戸建で募集中の物件

  1. 31.06坪 (102.68㎡)

    3,380万円(108.82万円/坪)

近隣の物件

  1. 桜井市大字大豆越

    4SLDK (96.05㎡)

    3,280万円

  2. 桜井市大字大豆越

    4LDK (109.30㎡)

    2,980万円

  3. 桜井市大字大豆越

    4SLDK (106.81㎡)

    3,080万円

  4. 桜井市大字大豆越

    4SLDK (109.30㎡)

    3,080万円

桜井市西之宮 6号棟 /新築一戸建

お気軽にお問い合わせください

無料お問い合わせ

センチュリー21 株式会社ベース

0745-34-0021

9:00~19:00

(休:年末年始)