生駒郡平群町緑ケ丘2丁目 一戸建

600万円

奈良県生駒郡平群町緑ケ丘2丁目

近鉄生駒線「元山上口」駅徒歩6分

近鉄生駒線「東山」駅徒歩18分

近鉄生駒線「平群」駅徒歩27分

価格
600万円
間取り
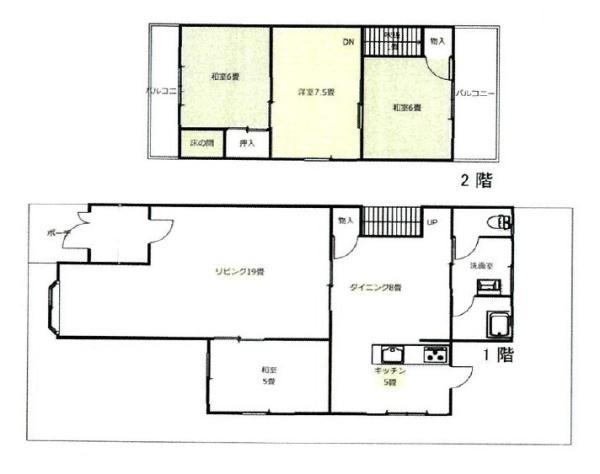
4LDK
土地面積
124.91㎡
所在地
奈良県生駒郡平群町緑ケ丘2丁目
交通

近鉄生駒線元山上口」駅 徒歩6分

近鉄生駒線東山」駅 徒歩18分

近鉄生駒線平群」駅 徒歩27分

建物面積
85.02㎡
築年月
1978年4月(築47年)

セールスポイント

■小学校や最寄り駅まで徒歩10分圏内の便利な住環境!
■2面バルコニー完備!前面道路も広く開放的です◎!

ポイント

 小学校や最寄り駅まで徒歩10分圏内の便利な住環境!  2面バルコニー完備!前面道路も広く開放的です◎!

基本情報

販売戸数
-
総戸数
-
間取り / 詳細
4LDK
向き
-
建物面積(坪数)
85.02㎡(25.71坪)
土地面積(坪数)
124.91㎡(37.78坪)
建ぺい率 /
容積率
80%/200%
築年月
1978年4月(築47年)
駐車場 /
月額料金
有(1台) -
土地権利
所有権
土地
(敷金 / 保証金)
- / -
建物構造
鉄骨造 / 2階建
傾斜地部分面積
-
路地状敷地
-
私道負担面積
-
セットバック
高圧線下面積
-
施工会社
-
用途地域
近隣商業
地目 / 地勢
宅地 / -
接道状況
一方(北西 公道 9.0m 間口 7.7m)
国土法届出要否
不要
都市計画
市街化区域
総区画数 /
販売区画数
-/-
現況
空家
その他
法令上の制限
-
取引態様
仲介
引渡し
即時
取引条件の
有効期限
2025年11月26日

設備条件

設備条件
  • 陽当り良好 / 閑静な住宅地 / 眺望良好 / フローリング / オール電化 / 2面バルコニー / カウンターキッチン
設備(その他)
    -

その他

物件番号
96628840
管理コード
136201-18420
建築確認番号
-
情報更新日
2025年11月12日
次回更新予定日
2025年11月26日
備考
※未登記部分有
※平成2年12月1階増改築済

支払いシミュレーション

月々の支払額
9.6
購入希望物件価格
万円
頭金
万円
金利
%
返済額(ボーナス1回分)
万円
返済期間

※ボーナスは自動で年2回分で計算されます。

近隣の物件

  1. リーブルガーデン椿井 1号棟 /新築一戸建

    生駒郡平群町大字椿井

    3SLDK (116.75㎡)

    2,780万円

  2. 生駒郡平群町初香台3丁目 一戸建

    生駒郡平群町初香台3丁目

    2LDK (80.41㎡)

    800万円

  3. 生駒郡平群町春日丘2丁目 一戸建

    生駒郡平群町春日丘2丁目

    5DK (100.10㎡)

    398万円

  4. リーブルガーデン三里 4号棟 /新築一戸建

    生駒郡平群町大字三里

    3LDK (100.61㎡)

    2,680万円

生駒郡平群町緑ケ丘2丁目 一戸建

生駒郡平群町緑ケ丘2丁目 一戸建

600万円

-

4LDK(85.02㎡)

お気軽にお問い合わせください

無料お問い合わせ

センチュリー21 株式会社ベース

0745-34-0021

9:00~19:00

(休:年末年始)